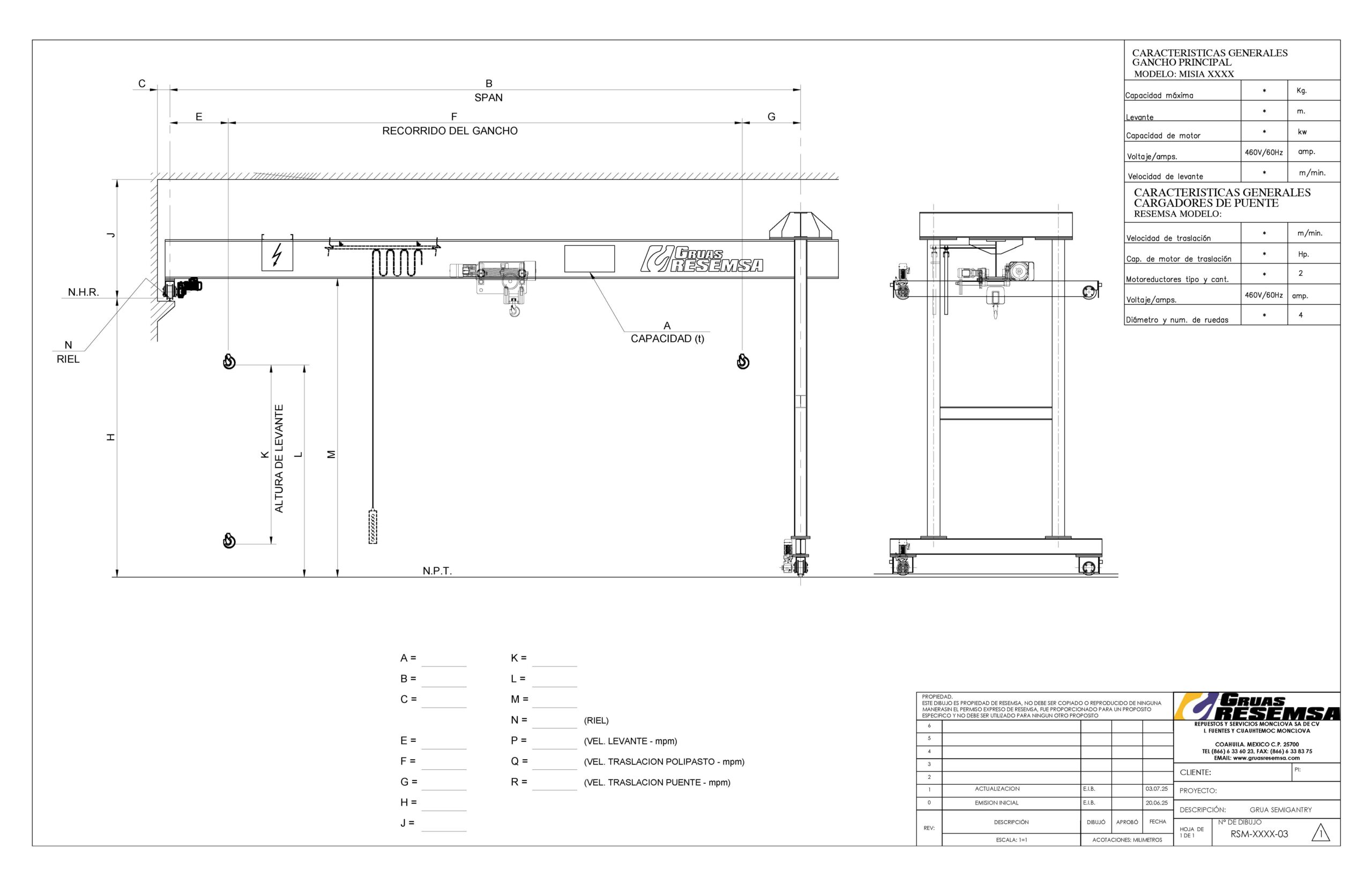
Semigantry

+52 (866) 100 76 89

866) 1007690 (866) 6380700 (81) 80884130 (442) 4235583

Flexibilidad y Eficiencia en Manejo Auxiliar de Materiales

Las Grúas Semigantry combinan la estabilidad de una grúa aérea con la versatilidad de una grúa apoyada en el suelo. Se utilizan como equipos auxiliares en mantenimiento y procesos, ya que permiten una interacción eficiente con grúas aéreas.

Gracias a su diseño, pueden instalarse en áreas abiertas o cerradas, adaptándose a diferentes necesidades de operación en sectores industriales como preparación de placa de acero, almacenes y manufactura.

Versatilidad Estructural

Disponibles en configuración monoviga o doble viga.

Flexibilidad en Instalación

Se pueden utilizar en interiores o exteriores.

Optimización de Espacios

Permiten la operación de dos grúas en la misma línea

Opciones de Elevación

Pueden operar con polipasto MISIA o carro abierto.

Especificaciones Técnicas

Característica Detalle
Tipo de grúa
Semigantry
Aplicaciones
Mantenimiento, preparación de placa de acero, manufactura, almacenes, producción
Capacidad de operación
Todas las capacidades, span hasta más de 50m
Servicio
Moderado a intenso
Vida útil
5,000 a 50,000 horas (CMAA hasta F) (FEM DIN hasta M8)
Sistema de elevación
Polipasto MISIA o carro abierto
Modo de operación
Cabina de control, con botonera colgante o radiocontrol

Casos de Uso / Aplicaciones

Semigantry
Semigantry

Preguntas Frecuentes

La grúa semigantry solo requiere una estructura de soporte parcial, lo que la hace más flexible en su instalación.

 

Sí, su diseño permite su instalación en áreas abiertas o cerradas.

Sí, puede diseñarse en configuración monoviga o doble viga, según las necesidades de carga y operación.